1 / 5  

Holzbau-Module
Cluster-Raumkonzept
partizipative Planung

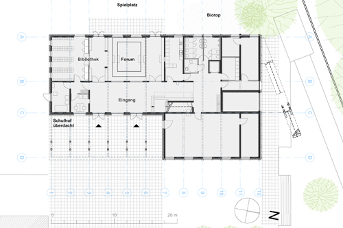
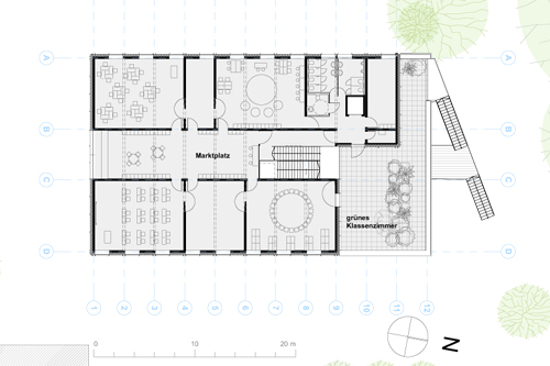
Dem Entwurf liegt ein durchgängiges Raster zugrunde, das auf die Transportmöglichkeiten von Holzbau-Modulen optimiert ist.

Durch die Kombination von Bewegungs- und Raumprogrammflächen entstehen statt eintöniger Flure multifunktionalen Differenzierungsflächen und Begegnungszonen.

Der partizipative Planungsprozess unter Beteiligung von Hort- und Schulleitung schaffte Akzeptanz für die Neugliedeung des Außenraums mit zusätzlichen Freiflächen am Gebäude.

 

Grundschule Ludwig Renn in Potsdam                               Erweiterungsbau für Grundschule und Hort

Leistungen:                             Entwurf, Genehmigungsplanung, Brandschutzplanung und Ausschreibung

Auftraggeber:                            Kommunaler Immobilienservice der Stadt Potsdam

Baugenehmigung erteilt 2025

 

Timber construction modules
Cluster room concept
Participatory planning

The design is based on a consistent grid optimized for the transport of prefabricated timber modules.

The combination of circulation and program areas creates multifunctional spaces and meeting zones instead of monotonous corridors.

The participatory planning process, involving the after-school care center and school administration, fostered acceptance of the reorganization of the outdoor space with additional open areas adjacent to the building.

Grundschule Ludwig Renn in Potsdam                Extension building for elementary school and after-school care center

Services: Design, planning for building permits, fire safety planning, and tendering

Client: Kommunaler Immobilienservice der Stadt Potsdam

Building permit issued in 2025